Zahradní domek Little Rock

  • Materiál: Severský smrk
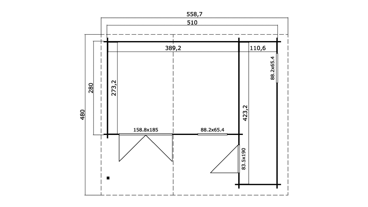
  • Rozměr: 510 cm x 430 cm (21,3 m²)
  • Obsah: s podlahou, palubky s perem a drážkou
  • Dveře: 158 x 185 cm
  • Dveře: 83 x 190 cm
  • Okno: 188 × 65 cm – 2 kusy
  • Tloušťka materiálu: 34 mm

Také dostupné v zrcadlově obráceném provedení.

95 000 
Ceny jsou uvedeny s DPH
Nejnižší cena za posledních 30 dní před poskytnutím slevy.

Dostupné na objednávku

Červený štítek s textem „Akční cena".
Dokumenty ke stažení:
Doplňující informace:
Zahradní chatku nelze poskládat zrcadlově.

Univerzální zahradní domek pro skladování i relaxaci

Zahradní domek Little Rock je ideální volbou pro každého, kdo hledá praktický, prostorný a esteticky příjemný doplněk do své zahrady. Díky svému klasickému designu a robustní konstrukci je vhodný jak pro skladování, tak i pro relaxační aktivity.

Prostorný interiér pro všestranné využití

  • Celková vnitřní plocha 21,3 m² poskytuje dostatek místa pro různé účely
  • Objem 45,52 m³ umožňuje pohodlné uskladnění zahradního nářadí, nábytku nebo sportovního vybavení

Robustní a odolná konstrukce

  • Stěny o tloušťce 34 mm zajišťují stabilitu a dlouhou životnost
  • Srubové spojení s deskami s perodrážkou poskytuje vyšší pevnost a odolnost proti povětrnostním vlivům

Klasická sedlová střecha s efektivním odvodem vody

  • Sklon střechy 11,4° umožňuje snadný odtok vody i sněhu
  • Přesahy střechy: 30 cm vpředu, 20 cm vzadu a 31,1 cm na pravé straně
  • Celková plocha střechy 27,36 m² připravená na pokrytí (střešní lepenka a šindele nejsou součástí balení)

Velká okna a dvojité dveře pro dostatek světla a snadný přístup

  • Dvojité dveře 1588 × 1850 mm s klasickým jednoduchým zasklením (SGC)
  • Jednoduché boční dveře 835 × 1900 mm
  • Dvě otvíratelná okna 882 × 654 mm umožňují přirozené světlo a ventilaci

Podlaha a možnost střešního prodloužení

  • Podlahové desky 18,5 × 90 mm – za doplatek
  • Možnost dodatečného prodloužení střechy pro lepší ochranu před deštěm

Technické specifikace

  • Vnější rozměry
    • Přední stěna 510 cm
    • Boční stěna 430 cm
  • Výška stěn 182,4 cm
  • Výška hřebene 245,1 cm
  • Hmotnost 1278 kg

Výhody zahradního domku Little Rock

  • Velký a praktický interiér vhodný pro skladování i relaxaci
  • Stabilní a odolná dřevěná konstrukce pro dlouhou životnost
  • Dvojité dveře a velká okna pro lepší osvětlení a pohodlí
  • Klasický design s tradiční sedlovou střechou
  • Jednoduchá montáž a možnost individuálních úprav
Zahradní domek Little Rock je skvělou volbou pro ty, kteří hledají multifunkční, estetický a odolný zahradní domek, který bude sloužit mnoho let.

Kontaktujte nás

Chcete informace hned? Volejte ihned! A rovnou se zeptejte!

Denně od 8.00 do 20.00 hod

Máte dotazy?

Pro více informací vyplňte kontaktní formulář – odpovídáme do 24 hodin.

Nenašli jste co hledáte?

Hledáte atypický domeček? Napište nám.

Nezávaznou nabídku Vám vypracujeme už do 24 hodin!

Pokud Vám nepřijde odpověď do 24 hodin Váš dopit neprošel volejte prosím tel: 775 780 563 !

Mohlo by se vám líbit

Nejnovější články v blogu

Web a SEO od Beyondea – SEO agentura