Dřevěná zahradní chatka Sri Lanka

Materiál: severský smrk
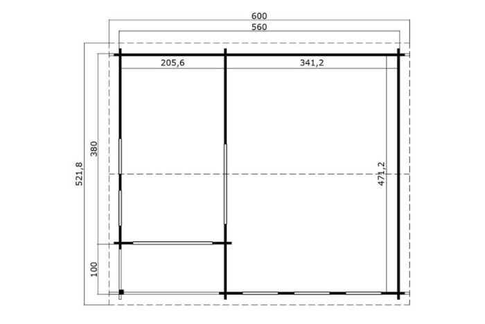
Rozměr: 560 x 380 cm
Obsah: FAB, podlaha a podkladní hranoly za příplatek
Dveře: 158x195 cm
Okno: 71 x 124 cm x5
Síla materiálu: 44 mm
189 000 
149 000 
Ceny jsou uvedeny s DPH
Nejnižší cena za posledních 30 dní před poskytnutím slevy.

Dostupné na objednávku

Dokumenty ke stažení:
Doplňující informace:

Dřevěnú chatku lze smontovat i zrcadlově.

Chatku je možné smontovat i zrcadlově.

DGP+ – dvojité zasklení Premium Plus – varianta Gold (příplatek 17.000,- Kč)
SGC – jednoduché zasklení – varianta Silver

Dřevěná zahradní chatka Sri Lanka

Elegantní dvoupokojová chatka s prostornou terasou

Zahradní domek Sri Lanka je ideálním řešením pro ty, kteří hledají stylový prostor pro odpočinek, práci nebo příjemné zahradní posezení. Díky dvěma místnostem a integrované terase nabízí perfektní využití pro letní bydlení, ateliér nebo zahradní kancelář.


Vnitřní prostor a rozměry

  • Vnitřní plocha: 25,97 m²
  • Objem: 65,88 m³
  • Vnější rozměry: 500 × 580 cm
  • Základové rozměry: 480 × 560 cm
  • Výška stěn: 222,3 cm
  • Výška hřebene: 285 cm
  • Přesahy střechy: přední/zadní 20 cm, boční 21,1 cm

Masivní konstrukce a odolné zpracování

  • Tloušťka stěn: 44 mm
  • Konstrukce: větrotěsné srubové spoje
  • Materiál: neošetřené dřevo
  • Čep: 10 cm
  • Základové hranoly: 70 × 45 mm

Střecha a podlaha

  • Typ střechy: sedlová
  • Sklon střechy: 14,9°
  • Střešní plocha: 32,4 m²
  • Palubky: 18 × 90 mm
  • Střešní krytina: není součástí balení
  • Doporučený počet balení šindelů: 13
  • Podlaha: součást balení – palubky 18 × 90 mm

Dveře a okna

Dvojkřídlé vstupní dveře

  • Rozměr: 1588 × 1957 mm
  • Kvalita: DGP+ – dvojité zasklení Premium Plus
  • Varianta Silver: SGC – jednoduché zasklení

5× otevírané okno

  • Rozměr: 710 × 1224 mm
  • Otevírání dovnitř
  • Varianta Gold: DGP+ – dvojité zasklení Premium Plus
  • Varianta Silver: SGC – jednosklo

Terasový prostor

  • Součást balení
  • S lemováním
  • Rozměr: šířka 206 cm × hloubka 100 cm
  • Palubky: 19 × 90 mm

Využití zahradního domku Sri Lanka

✔ Relaxační zóna s výhledem z terasy
✔ Kancelář nebo dílna s přirozeným světlem
✔ Zahradní ateliér nebo hobby místnost
✔ Kombinace bydlení a práce na jednom místě


Objednejte si zahradní domek Sri Lanka ještě dnes!

Tento elegantní model s prosklenými okny a útulnou terasou je připraven pro všechny, kteří hledají pohodlí, styl a kvalitní zpracování. Doručení i montáž po celém Česku.

Kontaktujte nás

Chcete informace hned? Volejte ihned! A rovnou se zeptejte!

Denně od 8.00 do 20.00 hod

Máte dotazy?

Pro více informací vyplňte kontaktní formulář – odpovídáme do 24 hodin.

Nenašli jste co hledáte?

Hledáte atypický domeček? Napište nám.

Nezávaznou nabídku Vám vypracujeme už do 24 hodin!

Pokud Vám nepřijde odpověď do 24 hodin Váš dopit neprošel volejte prosím tel: 775 780 563 !

Mohlo by se vám líbit

Rozměr: 570 × 460 cm - 25m2
173 000 
205 000 
159 000 
199 000 
Rozměr: 300 cm x 450 cm 13,5 m2
95 000 
125 000 

Nejnovější články v blogu