Srubový rekreační domek Caroline 2.2

  • Materiál: severský smrk
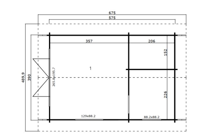
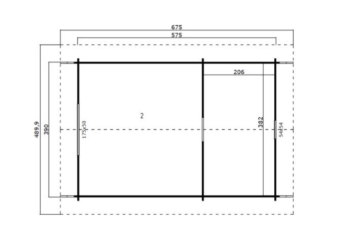
  • Velikost: 390 cm x 575 cm (21,66 m²)
  • Tloušťka materiálu: 40 mm
  • Okno: 54×54 cm, 88×88 cm, 129×88 cm, 150×51 cm
  • Dveře: 265×195 cm, 83c190 cm

Cena včetně DPH.

(také dostupné v zrcadlové verzi)

220 000 
195 000 
Ceny jsou uvedeny s DPH
Nejnižší cena za posledních 30 dní před poskytnutím slevy.

Dostupné na objednávku

Červený štítek s textem „Akční cena".
Dokumenty ke stažení:
Doplňující informace:

Zvýšení podkroví o cca 60cm : 18.000,- Kč s DPH - doporučujeme zejména při zateplení

 

Cena - okna izolačním dvousklem + 23.000,-Kč

 

(V nabídce i zrcadlová verze)

Srubový rekreační domek Caroline 2.2

Zahradní chatka Caroline 2.2 patří mezi největší modely v naší nabídce. Díky čtveřici místností, kvalitní konstrukci a elegantnímu designu je ideální jako prázdninový domek, letní kancelář nebo víkendová chata na vašem pozemku.


Vnitřní prostor a rozměry

  • Vnitřní plocha: 21,66 m²
  • Objem: 61,11 m³
  • Vnější rozměry: 410 × 595 cm
  • Základové rozměry: 390 × 575 cm
  • Výška stěn: 233,7 cm
  • Výška hřebene: 330,6 cm
  • Přesahy střechy ze všech stran: 50 cm

Masivní konstrukce a kvalitní zpracování

  • Tloušťka stěn: 40 mm
  • Konstrukce: větrotěsné srubové napojení
  • Materiál: neošetřené dřevo
  • Čep: 10 cm
  • Základové hranoly: 70 × 45 mm

Střecha a podlaha

  • Typ střechy: sedlová
  • Sklon: 27°
  • Střešní plocha: 37,12 m²
  • Střešní palubky: 18 × 90 mm
  • Střešní krytina: není součástí balení
  • Doporučený počet balení šindelů: 14
  • Podlaha: součást balení, palubky 18 × 90 mm

Dveře a okna

Vstupní dveře:

  • Typ: dvoukřídlé se zasklením po stranách
  • Rozměr: 2658 × 1957 mm
  • Kvalita: dvojité zasklení DGP+

Vedlejší dveře:

  • Typ: jednokřídlové
  • Rozměr: 835 × 1900 mm
  • Kvalita: DGP+

Okna:

  • 1× dvojité okno otevírané dovnitř (1290 × 882 mm)
  • 1× jednokřídlové okno otevírané dovnitř (882 × 882 mm)
  • 1× malé okno otevírané dovnitř (540 × 540 mm)
  • 1× pevné horizontální okno (1500 × 510 mm)
  • Všechna okna: DGP+ (dvojité zasklení Premium Plus)

Využití zahradního domku Caroline 2.2

✔ Letní chata pro rodinu nebo víkendové pobyty
✔ Zahradní kancelář s oddělenými místnostmi
✔ Domek pro hobby, dílnu nebo mini wellness
✔ Ideální pro velké zahrady a náročnější klienty


Objednejte si zahradní domek Caroline 2.2 ještě dnes!

Kombinace prostoru, kvality a klasického vzhledu dělá z modelu Caroline 2.2 perfektní doplněk každé zahrady.


Kontaktujte nás

Chcete informace hned? Volejte ihned! A rovnou se zeptejte!

Denně od 8.00 do 20.00 hod

Máte dotazy?

Pro více informací vyplňte kontaktní formulář – odpovídáme do 24 hodin.

Nenašli jste co hledáte?

Hledáte atypický domeček? Napište nám.

Nezávaznou nabídku Vám vypracujeme už do 24 hodin!

Pokud Vám nepřijde odpověď do 24 hodin Váš dopit neprošel volejte prosím tel: 775 780 563 !

Mohlo by se vám líbit

Nejnovější články v blogu

Web a SEO od Beyondea – SEO agentura