Moderní zahradní chatka Barbados 2

Materiál: severský smrk
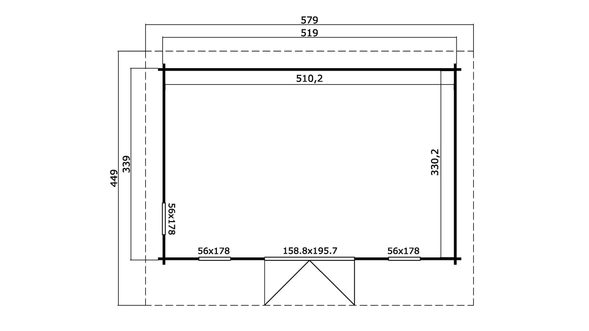
Rozměr: 519 cm x 339 cm (17,59 m2)
Obsah: s podlahou, desky pero – drážka
Dveře: 159 x 196 cm
Okno: 3x 56 x 179 cm
Síla materiálu: 40 mm
175 000 
119 000 
Ceny jsou uvedeny s DPH
Nejnižší cena za posledních 30 dní před poskytnutím slevy.

Dostupné na objednávku

Dokumenty ke stažení:

Moderní zahradní chatka Barbados 2: Stylové a prostorné řešení pro vaši zahradu

Moderní zahradní chatka Barbados 2 je ideální volbou pro ty, kteří hledají spojení moderního designu, vysoké kvality a funkčního prostoru. Tento elegantní zahradní domek je vhodný jako místo pro práci, odpočinek nebo venkovní bydlení. Díky robustní konstrukci a preciznímu zpracování se Moderní zahradní chatka Barbados 2 skvěle hodí do jakéhokoliv exteriéru.


Klíčové vlastnosti Moderní zahradní chatka Barbados 2

Prostorný a funkční interiér

  • Vnitřní plocha: 15,96 m² poskytuje dostatek prostoru pro různé využití.
  • Objem: 35,81 m³ nabízí dostatek místa pro pohodlné uspořádání interiéru.

Pevná a odolná konstrukce

  • Tloušťka stěn: 70 mm zaručuje výbornou stabilitu a tepelnou izolaci.
  • Srubové spoje s perodrážkou: Poskytují maximální odolnost vůči povětrnostním vlivům.
  • Materiál: Kvalitní, neošetřené dřevo, které je připravené pro individuální úpravy.

Moderní pultová střecha a elegantní design

  • Typ střechy: Plochá se sklonem 4,7° pro efektivní odtok vody.
    • Střešní plocha: 26,57 m²
    • Střešní krytina: Není součástí balení (možnost doplnění šindelů nebo asfaltového pásu).
  • Přesahy střechy:
    • Přední: 80 cm
    • Zadní: 30 cm
    • Pravý: 30 cm
    • Levý: 30 cm

Kvalitní dveře a okna

  • Dvojité vstupní dveře:
    • Rozměry: 1580 × 1933 mm
    • Kvalitní zpracování pro maximální odolnost a estetický vzhled.
  • Tři velká otvíratelná okna:
    • Rozměry: 552 × 1729 mm
    • Zajišťují dostatek přirozeného světla a možnost efektivního větrání.

Podlaha a montáž

  • Podlaha: Součást balení, vyrobená z kvalitních dřevěných desek o rozměrech 18 × 90 mm.
  • Montáž: Díky precizně opracovaným dílům je sestavení jednoduché a efektivní.

Proč si vybrat Moderní zahradní chatka Barbados 2?

  • Moderní minimalistický design – elegantní plochá střecha a čisté linie.
  • Prostorný interiér – ideální pro práci, relaxaci nebo venkovní bydlení.
  • Vysoce kvalitní materiály – robustní konstrukce pro dlouhou životnost.
  • Velká okna a dveře – dostatek přirozeného světla a příjemná atmosféra.
  • Snadná montáž – rychlé a jednoduché sestavení díky preciznímu zpracování.

Objednejte si Moderní zahradní chatka Barbados 2 ještě dnes!

Vytvořte si ideální prostor pro práci, hobby nebo odpočinek přímo ve své zahradě. Moderní zahradní chatka Barbados 2 je skvělou volbou pro moderní exteriér!

Naše BLOGY:

2 – Výběr zahradního domku a garáže

Víme v jakém přibližném rozměru chceme realizovat chatku? Dalším parametrem při výběru chatky je způsob jejího budoucího využití …

1 – Rozměr základního domku a zahradní chatky.

Je třeba si zvážit kolik prostoru si chceme, případně můžeme vyčlenit pro budoucí chatku. Při pozemcích s dostatečnou plochou je to vcelku jednoduché. Větší pozor si třeba dát pokud nás plocha pozemku svým rozměrům limituje…

 

 

Kontaktujte nás

Chcete informace hned? Volejte ihned! A rovnou se zeptejte!

Denně od 8.00 do 20.00 hod

Máte dotazy?

Pro více informací vyplňte kontaktní formulář – odpovídáme do 24 hodin.

Nenašli jste co hledáte?

Hledáte atypický domeček? Napište nám.

Nezávaznou nabídku Vám vypracujeme už do 24 hodin!

Pokud Vám nepřijde odpověď do 24 hodin Váš dopit neprošel volejte prosím tel: 775 780 563 !

Mohlo by se vám líbit

Rozměr: 570 × 460 cm - 25m2
173 000 
205 000 
Rozměr: 390x250cm 9,7 m2, 390x300cm, 500x390cm
81 500 
110 000 
159 000 
199 000 

Nejnovější články v blogu

situs 888 wdbos situs slot gacor slot maxwin Nanastoto Depobos slot gacor toto toto toto toto toto http://cppg.fccollege.edu.pk/facultymembers/ toto slot online toto toto slot slot gacor situs toto toto idn poker gg soft WDBOS toto toto toto idn slot ABADIWIN https://www.linktown.co.id/