Zahradní chatka s terasou Luna 2

Materiál: severský smrk
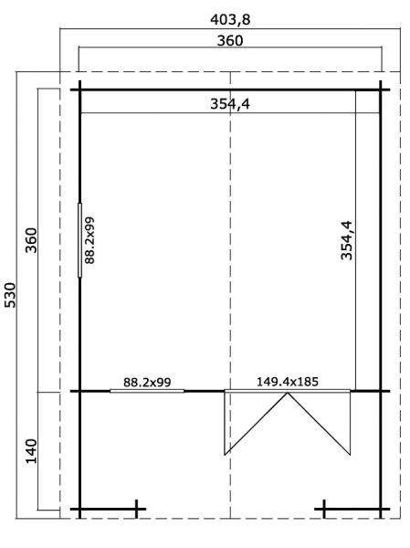
Rozměr: 360 cm x 360 cm + 140 cm terasa
Rozměr v m2: 19 m2
Obsah: s podlahou, desky pero – drážka
Dveře: 149 x 185 cm
Okno: 88 x 99 cm, 88x99 cm
Síla materiálu: 28 mm
86 000 
75 000 
Ceny jsou uvedeny s DPH
Nejnižší cena za posledních 30 dní před poskytnutím slevy.

Dostupné na objednávku

Dokumenty ke stažení:
Doplňující informace:

Zahradní domek lze smontovat i zrcadlově

Zahradní chatka s terasou Luna 2

Elegantní a praktická dřevěná chatka pro každou zahradu

Zahradní chatka s terasou Luna 2 je ideální volbou pro každého, kdo hledá kombinaci estetického vzhledu a praktického využití. Díky svému klasickému designu a robustní konstrukci nabízí nejen úložný prostor, ale také pohodlné venkovní posezení na terase. Skvěle se hodí jako rekreační prostor, sklad zahradního nářadí nebo místo pro odpočinek v přírodě.

Pevná konstrukce a kvalitní materiály

● Stěny o tloušťce 28 mm poskytují stabilitu a dlouhou životnost
● Srubové spoje s perodrážkou zajišťují pevnost a odolnost proti povětrnostním vlivům
● Vyrobeno z kvalitního dřeva s možností individuálních úprav

Prostorný interiér a venkovní terasa

● Vnitřní plocha 12,56 m² umožňuje široké možnosti využití
● Objem 27,56 m³ poskytuje dostatek prostoru pro skladování i relaxaci
● Prostorná terasa o rozměrech 360 × 140 cm vytváří příjemné venkovní posezení

Odolná sedlová střecha

● Sklon střechy 16° zajišťuje efektivní odvod vody
● Přesahy střechy 150 cm vpředu a 20 cm po stranách chrání chatku před nepříznivým počasím
● Celková plocha střechy 22,26 m² s možností pokrytí střešní krytinou (střešní lepenka je součástí balení, šindele nejsou zahrnuty)

Dveře a okna pro pohodlné užívání

● Dvojité dveře o rozměrech 1494 × 1850 mm umožňují snadný vstup a dostatek světla
● Dvě otvíravá okna (882 × 990 mm) pro přirozené větrání a osvětlení interiéru

Technické specifikace

Vnější rozměry:
● Přední stěna: 360 cm
● Boční stěna: 360 cm
● Výška stěn: 193,8 cm
● Výška hřebene: 245,1 cm
● Hmotnost: 1066 kg

Výhody zahradní chatky Luna 2

● Multifunkční využití jako sklad, rekreační prostor nebo místo pro venkovní posezení
● Pevná a odolná dřevěná konstrukce s dlouhou životností
● Prostorná terasa pro pohodlný odpočinek na čerstvém vzduchu
● Dvojité dveře a okna pro snadný přístup a dostatek přirozeného světla
● Snadná montáž s možností přizpůsobení podle vlastních potřeb

Zahradní chatka s terasou Luna 2 je ideálním řešením pro každého, kdo chce do své zahrady přidat funkční a esteticky přitažlivý prvek. Vytvořte si dokonalé místo pro relaxaci a odpočinek v přírodě!

Zahradní domek s terasou Luna 2 je možné umístit nejen na klasickou základovou desku, ale i na zemní vruty a rošt.

Blog: Mnoho našich budoucích zákazníků nám volá a píše na FACEBOOK stránku a Instagram. Nemá totiž přesnou představu – jaký zahradní domek zakoupit. Potřebují poradit a zkonzultovat svou volbu. Proto jsme zřídili blogovou stránku, kde zveřejňujeme rady a postřehy důležité při výběru zahradního domku a chatky. Obecně platí, že naše srubové chatky, domky a garáže mají dobrý poměr ceny a využití. Výhodou dřevěných chatek je rychlá stavba, přičemž základní chatku např. o rozměru 12m2 máte postavenou za den. Zkrátka je to velmi dobré řešení za zajímavou cenu.

7 – Montáž zahradní chatky na betonovou dlažbu

Zámková dlažba je z pohledu lehké stavby, kterou zahradní chatka bezpochyby je ideální řešení.

6 – Náter záhradní chatky

Cosi o nátěrech. Zahradní domek máme poskládaný a třeba ho řádně ošetřit. Vnější prostředí ovlivňuje chatku hned od začátku.

 

 

Kontaktujte nás

Chcete informace hned? Volejte ihned! A rovnou se zeptejte!

Denně od 8.00 do 20.00 hod

Máte dotazy?

Pro více informací vyplňte kontaktní formulář – odpovídáme do 24 hodin.

Nenašli jste co hledáte?

Hledáte atypický domeček? Napište nám.

Nezávaznou nabídku Vám vypracujeme už do 24 hodin!

Pokud Vám nepřijde odpověď do 24 hodin Váš dopit neprošel volejte prosím tel: 775 780 563 !

Mohlo by se vám líbit

Rozměr: 570 × 460 cm - 25m2
173 000 
205 000 
Rozměr: 390x250cm 9,7 m2, 390x300cm, 500x390cm
81 500 
110 000 
159 000 
199 000 

Nejnovější články v blogu

situs 888 wdbos situs slot gacor slot maxwin Nanastoto Depobos slot gacor toto toto toto toto toto http://cppg.fccollege.edu.pk/facultymembers/ toto slot online toto toto slot slot gacor situs toto toto idn poker gg soft WDBOS toto toto toto idn slot ABADIWIN https://www.linktown.co.id/