Zahradní domek Wibo 300

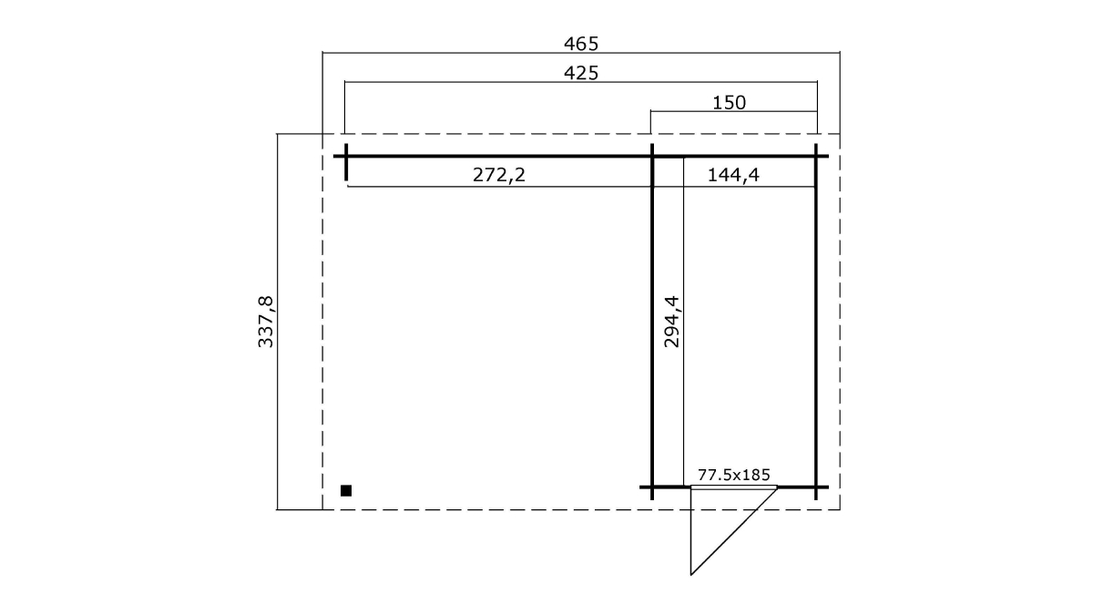
Rozměr: 300 cm x 425 cm (12,35 m2)
Rozměr v m2: 16 m2
63 000 
48 000 
Ceny jsou uvedeny s DPH
Nejnižší cena za posledních 30 dní před poskytnutím slevy.

Dostupné na objednávku

Dokumenty ke stažení:
Doplňující informace:

Doplňky:
Boční plná stěna: 9.000 Kč vč DPH

(V nabídce i zrcadlová verze)

Zahradní domek Wibo 300

Univerzální řešení pro vaši zahradu

Zahradní domek Wibo 300 je praktická a stylová volba pro každého, kdo hledá funkční a estetické řešení pro svůj venkovní prostor. Tento domek kombinuje odolnou konstrukci s klasickým designem a nabízí dostatek prostoru pro skladování, relaxaci nebo pracovní využití.

Pevná konstrukce a kvalitní materiály

● Stěny o tloušťce 28 mm poskytují stabilitu a ochranu proti povětrnostním podmínkám
● Pevné srubové spoje s perodrážkou zajišťují dlouhou životnost a odolnost proti větru
● Neošetřené dřevo umožňuje individuální povrchovou úpravu podle vašeho vkusu

Prostorný interiér pro více možností využití

● Vnitřní plocha 12,35 m² poskytuje dostatek prostoru pro skladování nebo relaxaci
● Objem 27,8 m³ umožňuje efektivní uspořádání interiéru
● Ideální jako zahradní domek na nářadí, menší dílna nebo klidné místo k odpočinku

Klasická sedlová střecha pro efektivní ochranu

● Sklon střechy 15° umožňuje efektivní odvod vody
● Přesahy střechy: 20 cm vpředu a vzadu, 18,9 cm po stranách pro lepší ochranu před deštěm
● Celková plocha střechy 16,28 m², připravená k pokrytí (střešní lepenka a šindele nejsou součástí balení)

Dveře pro pohodlný přístup

● Jednokřídlé dveře o rozměrech 775 × 1850 mm s plexisklovou výplní XGA+28 poskytují dostatek světla a snadný vstup

Technické specifikace

Vnější rozměry:
● Přední stěna: 300 cm
● Boční stěna: 425 cm
● Výška stěn: 205,2 cm
● Výška hřebene: 245,1 cm
● Hmotnost: 692 kg

Výhody zahradního domku Wibo 300

● Kvalitní konstrukce pro dlouhou životnost
● Kompaktní rozměry a přesto prostorný interiér
● Klasický design vhodný do každého typu zahrady
● Možnost individuálních úprav díky neošetřenému dřevu
● Snadná montáž a flexibilní využití

Zahradní domek Wibo 300 je ideálním řešením pro každého, kdo hledá multifunkční prostor pro svou zahradu. Ať už ho využijete jako sklad, dílnu nebo místo k odpočinku, vždy splní vaše očekávání!

Kontaktujte nás

Chcete informace hned? Volejte ihned! A rovnou se zeptejte!

Denně od 8.00 do 20.00 hod

Máte dotazy?

Pro více informací vyplňte kontaktní formulář – odpovídáme do 24 hodin.

Nenašli jste co hledáte?

Hledáte atypický domeček? Napište nám.

Nezávaznou nabídku Vám vypracujeme už do 24 hodin!

Pokud Vám nepřijde odpověď do 24 hodin Váš dopit neprošel volejte prosím tel: 775 780 563 !

Mohlo by se vám líbit

Rozměr: 570 × 460 cm - 25m2
173 000 
205 000 
Rozměr: 390x250cm 9,7 m2, 390x300cm, 500x390cm
81 500 
110 000 
159 000 
199 000 

Nejnovější články v blogu

situs 888 wdbos situs slot gacor slot maxwin Nanastoto Depobos slot gacor toto toto toto toto toto http://cppg.fccollege.edu.pk/facultymembers/ toto slot online toto toto slot slot gacor situs toto toto idn poker gg soft WDBOS toto toto toto idn slot ABADIWIN https://www.linktown.co.id/