Zahradní dům JAPAN 44

Materiál: severský smrk
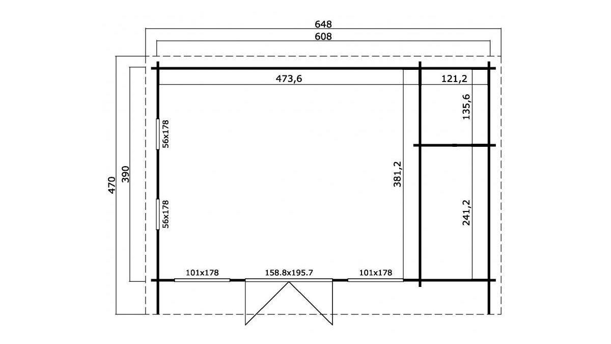
Rozměr: 608 cm x 390 cm (22,84 m2)
Rozměr v m2: 22,8 m2
Obsah: s podlahou, desky pero – drážka
Dveře: 159 x 196 cm, 84 x 190 cm
Okno: 101×178 cm 2x, 56×178 cmx2
Síla materiálu: 44 mm
265 000 
203 000 
Ceny jsou uvedeny s DPH
Nejnižší cena za posledních 30 dní před poskytnutím slevy.

Dostupné na objednávku

Dokumenty ke stažení:

Zahradní dům JAPAN 44: Elegantní a multifunkční prostor pro váš exteriér

Zahradní dům JAPAN 44 je ideálním řešením pro ty, kteří hledají prostorný a univerzální dřevěný domek. Díky třem odděleným místnostem nabízí široké možnosti využití – od relaxačního prostoru až po pracovní nebo kuchyňské zázemí. Kombinace klasického designu a moderní funkčnosti činí Zahradní dům JAPAN 44 skvělou volbou pro jakýkoli exteriér.


Prostorný a funkční interiér

  • Celková vnitřní plocha: 22,84 m² poskytuje dostatek prostoru pro různé účely.

  • Objem: 54,03 m³ zajišťuje vzdušné a pohodlné prostředí.

  • Tři oddělené místnosti: Ideální pro kombinaci obytné části, kanceláře, wellness nebo venkovní kuchyně.

Odolná a pevná konstrukce

  • Tloušťka stěn: 44 mm zajišťuje vysokou stabilitu a tepelnou izolaci.

  • Srubové spoje s perodrážkou: Poskytují pevnost a dlouhou životnost.

  • Materiál: Kvalitní, neošetřené dřevo připravené pro individuální úpravy.

Moderní pultová střecha a elegantní vzhled

  • Typ střechy: Plochá se sklonem 3,4° pro efektivní odtok vody.

    • Střešní plocha: 30,52 m²

    • Střešní krytina: Není součástí balení (možnost doplnění šindelů nebo asfaltového pásu).

  • Přesahy střechy:

    • Přední: 20 cm

    • Zadní: 20 cm

    • Pravý: 20 cm

    • Levý: 60 cm

Kvalitní dveře a okna

  • Dvojité vstupní dveře (DGP+ – Double Glazed Premium Plus):

    • Rozměry: 1588 × 1957 mm

    • Dvojité zasklení poskytuje lepší izolaci a elegantní vzhled.

  • Dvoje jednokřídlé dřevěné dveře (TP+ – Solid Wood Premium Plus):

    • Rozměry: 835 × 1900 mm

    • Ideální pro oddělené místnosti s různým využitím.

  • Dvě velká pevná dvojitá okna (DGP+ – Double Glazed Premium Plus):

    • Rozměry: 1010 × 1780 mm

    • Poskytují dostatek přirozeného světla.

  • Dvě otevíratelná jednoduchá okna (DGP+ – Double Glazed Premium Plus):

    • Rozměry: 560 × 1780 mm

    • Zajišťují ventilaci a světelnost interiéru.

Podlaha a montáž

  • Podlaha: Součástí balení, vyrobena z kvalitních dřevěných desek o rozměrech 18 × 90 mm.

  • Montáž: Precizně opracované díly umožňují snadnou a efektivní instalaci.


Proč si vybrat Zahradní dům JAPAN 44?

  • Tři oddělené místnosti – maximální flexibilita využití.

  • Moderní a nadčasový design – elegantní pultová střecha a čisté linie.

  • Pevná a kvalitní konstrukce – robustní dřevěné stěny a spoje pro dlouhou životnost.

  • Velká okna a dveře – dostatek přirozeného světla a pohodlný vstup.

  • Vysoká variabilita využití – vhodný pro relaxaci, práci, wellness i venkovní vaření.

  • Snadná montáž – rychlé a jednoduché sestavení díky preciznímu zpracování.


Objednejte si Zahradní dům JAPAN 44 ještě dnes!

Vytvořte si ideální prostor pro odpočinek, práci nebo relaxaci přímo ve své zahradě. Zahradní dům JAPAN 44 je skvělým řešením pro ty, kteří hledají multifunkční a elegantní dřevěný zahradní atelier!


Blogy o zahradních chatkách – výběr:

22. BLOG – MODERNÍ ZAHRADNÍ DOMEK JAVA

Rádi bychom Vám v tomto blogu představili moderní zahradní stavbu Java. Provedení materiálu 44mm. S podlahou, terasou a velkými posuvnými panoramatickými dveřmi a okny.

21 -Moderní zahradní stavby DOMEO s posuvnými AL okny

Moderní zahradní stavby DOMEO jsou skvělou novinkou pro rok 2021. Zde je máte všechny na jedné kope.

 

 

Kontaktujte nás

Chcete informace hned? Volejte ihned! A rovnou se zeptejte!

Denně od 8.00 do 20.00 hod

Máte dotazy?

Pro více informací vyplňte kontaktní formulář – odpovídáme do 24 hodin.

Nenašli jste co hledáte?

Hledáte atypický domeček? Napište nám.

Nezávaznou nabídku Vám vypracujeme už do 24 hodin!

Pokud Vám nepřijde odpověď do 24 hodin Váš dopit neprošel volejte prosím tel: 775 780 563 !

Mohlo by se vám líbit

Rozměr: 570 × 460 cm - 25m2
159 000 
205 000 
145 000 
199 000 
Rozměr: 390x250cm 9,7 m2, 390x300cm, 500x390cm
81 500 
110 000 

Nejnovější články v blogu