Dřevěná garáž Mauritius 28

  • Materiál: severský smrk
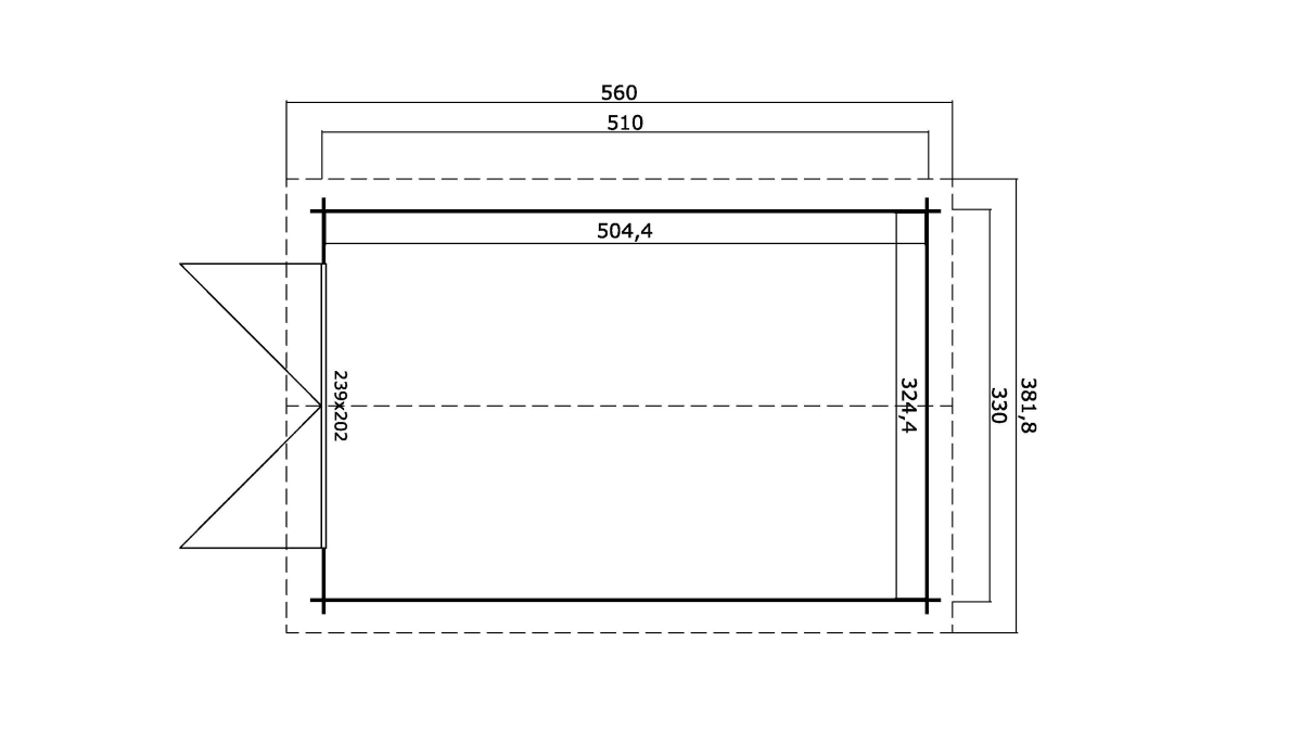
  • Rozměry: 330 cm x 510 cm
  • Tloušťka materiálu: 28 mm

Cena včetně DPH:

 

(boční okna a dveře za příplatek)

73 000 
Ceny jsou uvedeny s DPH

Dostupné na objednávku

Dokumenty ke stažení:

 

Garáž Martinus je kvalitní a finančně nenáročné řešení parkování pro Vaše auto. Stavba je vhodná i jako sklad pro Vaši firmu. Garáž se dodává ve standardu s dvojkřídlovými dveřmi. Také je možná dodávka bez dveří, případně s výklopnou bránou. Jako základ doporučujeme betonovou desku, nebo zámkovou dlažbu. Informace naleznete v sekci technické informace.

Dřevěná garáž je vyráběna zpředsušeného smrkového dřeva. Součástí jsou garážové křídlové dveře, zámek s klíčem.

Výrobcem garáže Martinus je estonská Lasita Maja, která je světovým lídrem ve výrobě zahradních chatek.

Nesmíme zapomínat ani na kvalitní nátěr či dobrou střešní krytinu. Na střechu Vám každopádně doporučíme kanadský šindel, který je osvědčený. Také je svou váhou přiměřený konstrukčním a statickým potřebám této garáže.

Jako nátěrovou hmotu používáme Remmers. Jedná se o vícesložkovou nátěrovou hmotu. Informace najdete také v kategorii nátěry. Samozřejmě je možné chatku ošetřit i jiným kvalitním nátěrem Na trhu je dostatek kvalitních značek.

Inspiraci můžete hledat I v našich blozích:


16 – Garáže pro Vašeho čtyřkolového miláčka od Lasity

V následujícím blogu bychom Vám rádi představili naše dřevěné garáže. Jsou velmi rychlým a ekonomickým řešením pro naše klienty

2 – Výběr zahradního domku a garáže

Víme v jakém přibližném rozměru chceme realizovat chatku? Dalším parametrem při výběru chatky je způsob jejího budoucího využití …

1 – Rozměr základního domku a zahradní chatky.

Je třeba si zvážit kolik prostoru si chceme, případně můžeme vyčlenit pro budoucí chatku. Při pozemcích s dostatečnou plochou je to vcelku jednoduché. Větší pozor si třeba dát pokud nás plocha pozemku svým rozměrům limituje…

 

 

Kontaktujte nás

Chcete informace hned? Volejte ihned! A rovnou se zeptejte!

Denně od 8.00 do 20.00 hod

Máte dotazy?

Pro více informací vyplňte kontaktní formulář – odpovídáme do 24 hodin.

Nenašli jste co hledáte?

Hledáte atypický domeček? Napište nám.

Nezávaznou nabídku Vám vypracujeme už do 24 hodin!

Pokud Vám nepřijde odpověď do 24 hodin Váš dopit neprošel volejte prosím tel: 775 780 563 !

Mohlo by se vám líbit

Nejnovější články v blogu

Web a SEO od Beyondea – SEO agentura