Zahradní domek s terasou Anders

Materiál: severský smrk
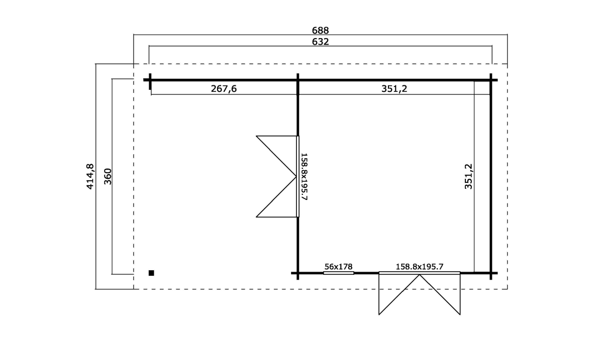
Rozměr: 360 cm x 360 cm + 267 terasa
Rozměr v m2: 22,7 m2
Obsah: 18mm podlaha v chatce
Dveře: 149 x 195 cm, 2x
Okno: 56x178cm
Síla materiálu: 44 mm
199 000 
133 000 
Ceny jsou uvedeny s DPH
Nejnižší cena za posledních 30 dní před poskytnutím slevy.

Dostupné na objednávku

Dokumenty ke stažení:

Zahradní domek s terasou Anders – moderní a funkční řešení pro vaši zahradu

Prostorný a elegantní zahradní domek

Zahradní domek Anders s terasou je ideální volbou pro ty, kteří hledají kombinaci funkčnosti, estetiky a moderního designu. Díky velké zastřešené terase poskytuje nejen útulné zázemí pro relaxaci, ale také praktický prostor pro venkovní vaření či posezení s přáteli.

Kvalitní konstrukce a moderní materiály

● Stěny o tloušťce 44 mm zajišťují vysokou stabilitu a odolnost vůči povětrnostním podmínkám
● Srubové spoje s perodrážkou poskytují pevnost a dlouhou životnost
● Možnost individuálních úprav díky neošetřenému dřevu

Praktické vnitřní uspořádání

● Celková vnitřní plocha 12,33 m² umožňuje široké využití – jako sklad, letní kuchyně či venkovní kancelář
● Objem 28,12 m³ zajišťuje dostatek prostoru pro komfortní pobyt
● Obdélníkový tvar umožňuje snadné uspořádání interiéru

Velká terasa pro pohodlí a relaxaci

● Plocha terasy 9,79 m² nabízí skvělý prostor pro posezení nebo grilování
● Přístřešek chrání před sluncem i deštěm, čímž rozšiřuje možnosti využití domku
● Moderní rovná střecha se sklonem 1,8° pro efektivní odvod vody

Dveře a okna pro maximální komfort

● Dvoje dvojité dveře (1588 × 1957 mm) s dvojitým prémiovým zasklením DGP+ umožňují pohodlný přístup a maximální prosvětlení interiéru
● Jedno velké okno (560 × 1780 mm) zajišťuje dostatek přirozeného světla

Technické specifikace

Vnější rozměry:
● Přední stěna: 360 cm
● Boční stěna: 360 cm
● Výška stěn: 222,3 cm
● Výška hřebene: 233,7 cm
● Hmotnost: 1520 kg

Výhody zahradního domku Anders

● Prostorný interiér a velká zastřešená terasa
● Stabilní a odolná konstrukce z kvalitního dřeva
● Dvojité dveře a velké okno pro maximální osvětlení a komfort
● Moderní design s rovnou střechou
● Snadná montáž a možnost individuálních úprav

Zahradní domek s terasou Anders s terasou je perfektní volbou pro všechny, kteří chtějí zkombinovat eleganci, praktičnost a komfort. Skvěle se hodí jako zahradní altán, letní kuchyně nebo relaxační místo. Přidejte do své zahrady styl a funkčnost!

Kontaktujte nás

Chcete informace hned? Volejte ihned! A rovnou se zeptejte!

Denně od 8.00 do 20.00 hod

Máte dotazy?

Pro více informací vyplňte kontaktní formulář – odpovídáme do 24 hodin.

Nenašli jste co hledáte?

Hledáte atypický domeček? Napište nám.

Nezávaznou nabídku Vám vypracujeme už do 24 hodin!

Pokud Vám nepřijde odpověď do 24 hodin Váš dopit neprošel volejte prosím tel: 775 780 563 !

Mohlo by se vám líbit

Rozměr: 570 × 460 cm - 25m2
159 000 
205 000 
145 000 
199 000 
Rozměr: 390x250cm 9,7 m2, 390x300cm, 500x390cm
81 500 
110 000 

Nejnovější články v blogu