Domky a chatky Alexandra

Materiál: severský smrk
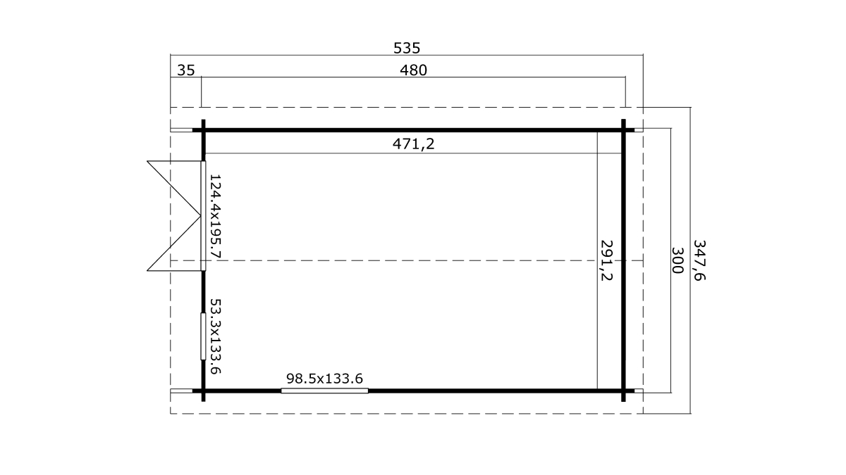
Rozměr: 300 cm x 480 cm
Obsah: s podlahou, desky pero – drážka
Dveře: 124 x 196 cm
Okno: 1x 53 x 134 cm, 2x 98 x 134 cm
Síla materiálu: 44 mm
153 000 
Ceny jsou uvedeny s DPH

Dostupné na objednávku

    Domčeky a chatky Alexandra v 44 mm prevedení krásne zapadne k Vášmu domu , alebo záhradke. Chatka netypická svojim rozmerom. Ponúka 13,7 m2 vnútorného priestoru, ktorý je možné využiť  na uskladnenie  materiálu, náradia  či príslušenstva k bazénu. Domček je vyrábaný je z predsušeného severského smrekového dreva. Súčasťou domu sú okná, dvoj dvere, kovania a podlaha, zámok s kľúčom. Montáž chatky je možná aj zrkadlovo.

    Domčeky a chatky nájdete od estónskej firmy Lasita Maja majú špičkovú kvalitu. Sú dodávané do celého sveta a certifikované ISO normami. Zárukou kvality je aj severské drevo, ktoré pomaly rastie a je teda zárukou vysokej kvality.

    Návody a rady nájdete nielen v blogu, ale aj v sekcii technických informácii, kde sa dozviete základné informácie o objednávke. Táto sekcia je rozšírená aj o návod na zhotovenie základovej dosky, môžete si stiahnuť vzorkovník farieb a šindlov.

    Realizácia záhradných chatiek:

    1. Spravidla 2-3 dni pred realizáciou  Vám telefonujeme a odsúhlasujeme si či je možné zákazku realizovať. Dohodne sa termín.

    Následne príde auto (pri domoch do 25m2) je to dodávka do 3,5T a privezie domček. Ak je objednávka bez montáže šofér Vám pomôže s vyložením . Vykladá sa ručne cca 45 min. Šofér Vám poskytne aj základné informácie ohľadne montáže.

    1.  Ak je objednávka  – stavba záhradných chatiek , z montážou prídu vždy min.  dvaja montážnici  a vykládku aj realizáciu realizujú bez Vašej pomoci. Po odkontrolovaní domu –  v prípade montáže po ukončení dostávate faktúru k úhrade.

    Spôsob objednávky záhradnej stavby:

    Snažíme sa aby komunikácia s nami bola vždy jednoduchá jasná a priama. Na základe Vášho mailového , alebo telefonického dopytu vypracujeme vždy nezáväznú ponuku, ktorá obsahuje nacenené služby podľa Vášho priania. Pokiaľ máte záujem napr. o montáž , strešný šindel – každá položka je nacenená zvlášť. Vy ste ten , ktorý si naskladá objednávku podľa vlastného uváženia.

    1. Na základe telefonického , alebo mailového kontaktu Vám bude vypracovaná ponuka. Táto obsahuje ceny s DPH a termín dodania
    2. Konzultácia  ponuky …zväčša  prebieha  telefonicky (príp. mailom), osobná návšteva v kancelárii v Trenčíne , alebo v Prostějove kde môžete vidieť aj vzorové domy
    3. Odsúhlasenie ponuky zo strany zákazníka  . Jedná sa o jednoduché potvrdenie milom. Súhlasíme s Vašou ponukou a o objednávame domček a nasledovné služby : doprava, montáž atď.

    (k dispozici je také zrcadlová verze chaty)

    Kontaktujte nás

    Chcete informace hned? Volejte ihned! A rovnou se zeptejte!

    Denně od 8.00 do 20.00 hod

    Máte dotazy?

    Pro více informací vyplňte kontaktní formulář – odpovídáme do 24 hodin.

    Nenašli jste co hledáte?

    Hledáte atypický domeček? Napište nám.

    Nezávaznou nabídku Vám vypracujeme už do 24 hodin!

    Pokud Vám nepřijde odpověď do 24 hodin Váš dopit neprošel volejte prosím tel: 775 780 563 !

    Mohlo by se vám líbit

    Rozměr: 570 × 460 cm - 25m2
    159 000 
    205 000 
    145 000 
    199 000 
    Rozměr: 390x250cm 9,7 m2, 390x300cm, 500x390cm
    81 500 
    110 000 

    Nejnovější články v blogu

    toto toto toto http://cppg.fccollege.edu.pk/facultymembers/ toto slot online toto toto slot slot gacor situs toto idn poker gg soft WDBOS toto toto toto idn slot ABADIWIN https://www.linktown.co.id/ toto slot situs togel slot88 parlay bola BOSJOKO situs slot slot88 slot gacor slot gacor toto toto slot toto toto toto WATITOTO toto slot situs toto JUTAWANBET WDBOS GOLTOGEL GOLTOGEL DINGDONGTOGEL GENGTOTO GOLTOGEL TOGELON toto DEPOBOS