Zahradný domek Wels 3

  • Materiál: Severský smrk
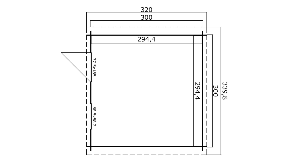
  • Rozměry: 300 cm x 300 cm (9,00 m²)
  • Obsah: podlaha, palubky s perem a drážkou
  • Dveře: 75×185 cm
  • Okno: 68×88 cm
  • Tloušťka materiálu: 28 mm

Cena včetně DPH: 57 250 Kč

(Dostupné také jako zrcadlová verze domku)

45 500 
Ceny jsou uvedeny s DPH

Dostupné na objednávku

Dokumenty ke stažení:
Doplňující informace:
Zahradní domek lze smontovat i zrcadlově

Zahradní domek Wels 3

Kompaktní a praktický úložný prostor pro vaši zahradu

Zahradní domek Wels 3 je ideálním řešením pro uskladnění zahradního nářadí, vybavení nebo sezónních potřeb. Díky svému čtvercovému tvaru a klasickému designu se snadno začlení do jakéhokoliv venkovního prostoru a poskytne spolehlivé úložiště pro všechny vaše potřeby.

Kvalitní konstrukce a odolné materiály

● Stěny o tloušťce 28 mm zajišťují stabilitu a dlouhou životnost
● Srubové spoje s perodrážkou poskytují pevnost a ochranu před povětrnostními vlivy
● Neošetřené dřevo umožňuje individuální úpravy podle vašich preferencí

Efektivní využití prostoru

● Vnitřní plocha 8,67 m² nabízí dostatek prostoru pro skladování zahradního vybavení
● Objem 19,02 m³ umožňuje přehledné a efektivní uspořádání
● Jednokřídlé dveře o rozměrech 775 × 1850 mm usnadňují přístup do domku

Klasická sedlová střecha

● Sklon střechy 15° zajišťuje efektivní odvod vody
● Přesahy střechy: 10 cm vpředu i vzadu, 19,9 cm po stranách chrání domek před povětrnostními vlivy
● Celková plocha střechy 11,52 m² připravena na pokrytí (střešní lepenka a šindele nejsou součástí balení)

Okno pro přirozené světlo

● Otevírací okno dovnitř (685 × 882 mm) s jednoduchým zasklením pro dostatek denního světla a větrání

Technické specifikace

Vnější rozměry:
● Přední stěna: 300 cm
● Boční stěna: 300 cm
● Výška stěn: 193,8 cm
● Výška hřebene: 245,1 cm
● Hmotnost: 572 kg

Výhody zahradního domku Wels 3

● Pevná dřevěná konstrukce s dlouhou životností
● Kompaktní velikost vhodná i pro menší zahrady
● Otevírací okno pro přirozené větrání a světlo
● Klasický vzhled, který zapadne do každého exteriéru
● Snadná montáž a možnost individuálních úprav

Zahradní domek Wels 3 je perfektním doplňkem každé zahrady, který poskytne funkční a estetické řešení pro uskladnění vašeho vybavení. Udržujte svůj venkovní prostor organizovaný s tímto praktickým domkem!

Výběr článků a rad o výběru zahradních staveb:

2 – Výběr zahradního domku a garáže

Pokud víme, v jaké přibližné velikosti chceme chatu realizovat, dalším parametrem při výběru chaty je způsob jejího budoucího využití…

5 – Montáž na zemní šrouby – šrouby

Mnozí z vás řeší problém, jak namontovat zahradní domek, Ne vždy je možné postavit základovou desku z betonu nebo zámkové dlažby. Pro tento případ pro vás máme řešení. Více informací o tomto způsobu implementace najdete na našem blogu.

4 – Stavba zahradní chatky a zahradního domku.

V předchozích částech blogu jsme se zabývali tím, jak si vybrat dobrý zahradní domek nebo rekreační chatu. V případě , že se rozhodnete postavit si chatu na vlastní pěst, máme pro vás několik rad, jak uspět a vytěžit ze stavby chaty maximum.

 

 

Kontaktujte nás

Chcete informace hned? Volejte ihned! A rovnou se zeptejte!

Denně od 8.00 do 20.00 hod

Máte dotazy?

Pro více informací vyplňte kontaktní formulář – odpovídáme do 24 hodin.

Nenašli jste co hledáte?

Hledáte atypický domeček? Napište nám.

Nezávaznou nabídku Vám vypracujeme už do 24 hodin!

Pokud Vám nepřijde odpověď do 24 hodin Váš dopit neprošel volejte prosím tel: 775 780 563 !

Mohlo by se vám líbit

Nejnovější články v blogu

Web a SEO od Beyondea – SEO agentura