Moderní zahradní domek Brighton 44

  • Materiál: Severský smrk
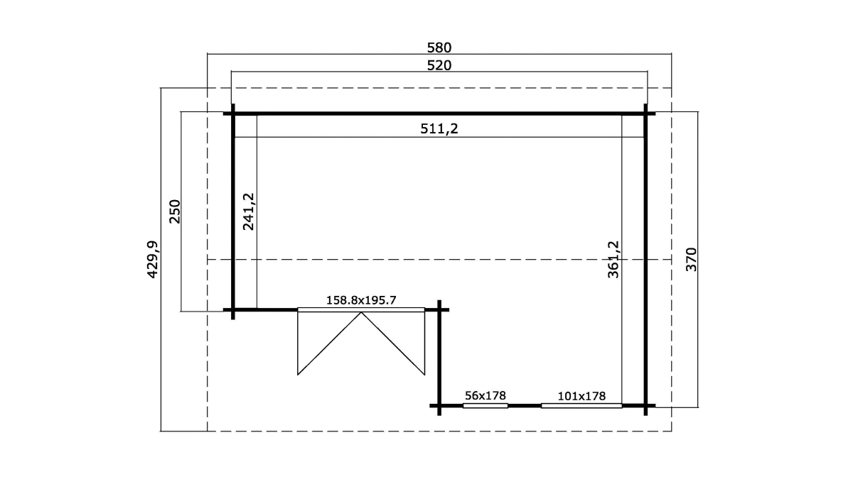
  • Rozměry: 520 cm x 370 cm (19,24 m²)
  • Obsah dodávky: s podlahou, palubky s perem a drážkou
  • Dveře: 159 x 196 cm
  • Okno: 56 x 179 cm
  • Okno: 101 x 179 cm
  • Tloušťka stěny: 44 mm

 

(také dostupné jako zrcadlová verze)

119 000 
Ceny jsou uvedeny s DPH

Dostupné na objednávku

Dokumenty ke stažení:

Moderní zahradní domek Brighton 44: Styl a funkčnost pro vaši zahradu

Moderní zahradní domek Brighton 44 představuje kombinaci moderního designu a praktického využití. Tento stylový domek je ideální pro venkovní bydlení, práci nebo relaxaci na vaší zahradě. S jeho robustní konstrukcí a elegantním vzhledem se Moderní zahradní domek Brighton 44 stane výrazným prvkem každého exteriéru.


Klíčové vlastnosti Moderní zahradní domek Brighton 44

Prostorný interiér

  • Vnitřní plocha: 18,46 m² poskytuje dostatek prostoru pro různé aktivity.
  • Objem: 42,63 m³ nabízí dostatek místa pro uspořádání nábytku, pracovního koutku nebo relaxační zóny.

Odolná a kvalitní konstrukce

  • Tloušťka stěn: 44 mm zaručuje vysokou stabilitu a dobrou tepelnou izolaci.
  • Srubové spoje s perodrážkou: Zajišťují dlouhou životnost a odolnost proti povětrnostním podmínkám.
  • Materiál: Kvalitní, neošetřené dřevo, které je připraveno pro vaši individuální úpravu.

Moderní design se sedlovou střechou a terasou

  • Tvar: Obdélníkový design pro maximální využití prostoru.
  • Střecha: Sedlová se sklonem 12,3° zajišťuje účinný odvod dešťové vody.
    • Střešní plocha: 25,52 m²
    • Střešní krytina: Není součástí balení (možnost doplnění šindelů nebo asfaltového pásu).
  • Přesahy střechy:
    • Přední: 30 cm
    • Zadní: 30 cm
    • Pravý a levý: 30 cm
  • Terasa:
    • Rozměry: 258 × 120 cm
    • Součást balení: Ano
    • Bez lemování pro minimalistický vzhled.

Kvalitní dveře a okna

  • Dvojité dveře (DGP+ – Double Glazed Premium Plus):
    • Rozměry: 1588 × 1957 mm
    • Dvojité zasklení pro lepší tepelnou izolaci a elegantní vzhled.
  • Okenní výbava:
    • Otevíratelné jednoduché okno: 560 × 1780 mm
    • Pevné dvojité okno: 1010 × 1780 mm
    • Poskytují dostatek přirozeného světla a ventilace.

Podlaha a montáž

  • Podlaha: Součást balení, vyrobená z kvalitních dřevěných desek o rozměrech 18 × 90 mm.
  • Montáž: Precizně opracované díly umožňují snadnou a rychlou instalaci.

Proč si vybrat Moderní zahradní domek Brighton 44?

  • Moderní a elegantní design – dokonalé spojení stylu a funkčnosti.
  • Prostorný interiér – ideální pro různé využití od kanceláře po relaxační prostor.
  • Kvalitní konstrukce – pevné dřevěné stěny a spoje pro dlouhou životnost.
  • Přirozené světlo a ventilace – díky velkým oknům a dvojitým dveřím.
  • Snadná montáž – rychlé a jednoduché sestavení díky kvalitnímu zpracování.

Objednejte si Moderní zahradní domek Brighton 44 ještě dnes!

Přidejte do své zahrady praktický a stylový prostor pro práci, odpočinek nebo setkávání s rodinou a přáteli. Moderní zahradní domek Brighton 44 je perfektním doplňkem pro každý moderní exteriér!

Blogy o zahradních chatkách

18 – Zahradní domek Balmoral – prostor pro odpočinek ve Vaší zahradě

Představujeme Vám další z našich zahradních domků od Lasity – Balmoral. Krásný prosklený zahradní domek v provedení 44mm.

16 – Garáže pro Vašeho čtyřkolového miláčka od Lasity

V následujícím blogu bychom Vám rádi představili naše dřevěné garáže. Jsou velmi rychlým a ekonomickým řešením pro naše klienty.

Kontaktujte nás

Chcete informace hned? Volejte ihned! A rovnou se zeptejte!

Denně od 8.00 do 20.00 hod

Máte dotazy?

Pro více informací vyplňte kontaktní formulář – odpovídáme do 24 hodin.

Nenašli jste co hledáte?

Hledáte atypický domeček? Napište nám.

Nezávaznou nabídku Vám vypracujeme už do 24 hodin!

Pokud Vám nepřijde odpověď do 24 hodin Váš dopit neprošel volejte prosím tel: 775 780 563 !

Mohlo by se vám líbit

Nejnovější články v blogu

Web a SEO od Beyondea – SEO agentura