Dřevěný zahradní domek Balmoral

Materiál: severský smrk
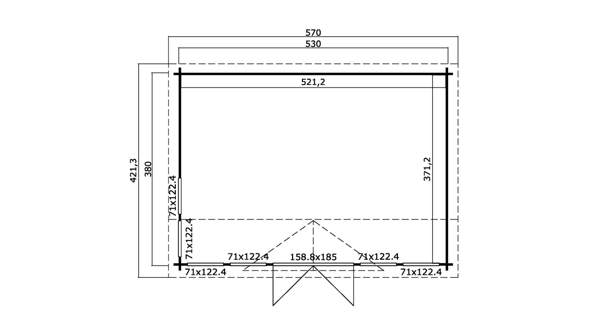
Rozměr: 380 cm x 530 cm (20,14 m2)
Rozměr v m2: 20 m2
Obsah: s podlahou, desky pero – drážka
Dveře: 159 x 185 cm
Okno: 6x 71 x 122 cm (zboku len n ajednej strane)
Síla materiálu: 44 mm
173 000 
130 000 
Ceny jsou uvedeny s DPH
Nejnižší cena za posledních 30 dní před poskytnutím slevy.

Dostupné na objednávku

Dokumenty ke stažení:

Dřevěný zahradní domek Balmoral 44

Prostorný a elegantní domek pro vaši zahradu

Dřevěný zahradní domek Balmoral 44 je ideální volbou pro ty, kteří hledají kombinaci prostornosti, elegance a funkčnosti. Díky svému klasickému designu a robustní konstrukci poskytuje ideální místo pro venkovní relaxaci, práci nebo hobby aktivity. Jeho promyšlená konstrukce umožňuje široké možnosti využití, od letní kanceláře po zahradní dílnu.

Pevná konstrukce a kvalitní materiály

● Stěny o tloušťce 44 mm zajišťují vysokou stabilitu a odolnost vůči povětrnostním podmínkám
● Srubové spoje s perodrážkou poskytují pevnost a dlouhou životnost
● Neošetřené dřevo umožňuje individuální úpravy podle vašich preferencí

Prostorný a praktický interiér

● Celková vnitřní plocha 19,35 m² je ideální pro různé účely, jako je skladování, kancelář či dílna
● Objem 42,46 m³ nabízí dostatek prostoru pro pohodlné uspořádání interiéru
● Velká okna a prosklené dveře zajišťují dostatek přirozeného světla

Střecha s klasickým vzhledem

● Sedlová střecha s úhlem sklonu 12,8° zajišťuje efektivní odvod vody
● Celková plocha střechy 24,51 m² je připravena k pokrytí (střešní krytina není součástí balení)
● Přesahy střechy vpředu i vzadu 20 cm chrání před povětrnostními vlivy

Technické specifikace

Vnější rozměry:
○ Přední stěna: 400 cm
○ Boční stěna: 550 cm
Výška:
○ Stěny: 199,5 cm
○ Hřeben střechy: 239,4 cm
Hmotnost: 1440 kg

Výhody zahradního domku Balmoral 44

● Prostorný interiér pro maximální využití
● Odolná konstrukce vhodná pro celoroční použití
● Velká prosklená okna a dveře pro přirozené osvětlení
● Klasický design vhodný do každého venkovního prostředí
● Snadná montáž a možnost individuálních úprav

Dřevěný zahradní domek Balmoral 44 je ideálním řešením pro každého, kdo hledá kvalitní a elegantní venkovní prostor s širokým využitím. Pořiďte si tento stylový domek a užijte si jeho komfort a praktičnost!

Inspirační blogy:

6 – Náter záhradní chatky

Cosi o nátěrech. Zahradní domek máme poskládaný a třeba ho řádně ošetřit. Vnější prostředí ovlivňuje chatku hned od začátku.

Kvalitní nátěr je základem zdraví Vaší zahradní chatky.

5 – Montáž na zemní vruty

Hodně z Vás řeší problém jak osadit zahradní domek, Ne vždy je možnost stavby základové desky z betonu či zámkové dlažby. Pro tento případ máme pro Vás řešení.

4 – Stavba zahradní chaty a zahradního domku.

V předchozí částech blogu jsme řešili jak si vybrat dobrý zahradní domek, nebo rekreační chatku. V případě, že se rozhodnete pro stavbu chatky svépomocí, máme tu pro Vás pár rad jak uspět a co nejlépe zrealizovat Vaši stavbu domku.

Kontaktujte nás

Chcete informace hned? Volejte ihned! A rovnou se zeptejte!

Denně od 8.00 do 20.00 hod

Máte dotazy?

Pro více informací vyplňte kontaktní formulář – odpovídáme do 24 hodin.

Nenašli jste co hledáte?

Hledáte atypický domeček? Napište nám.

Nezávaznou nabídku Vám vypracujeme už do 24 hodin!

Pokud Vám nepřijde odpověď do 24 hodin Váš dopit neprošel volejte prosím tel: 775 780 563 !

Mohlo by se vám líbit

Rozměr: 570 × 460 cm - 25m2
159 000 
205 000 
145 000 
199 000 
Rozměr: 390x250cm 9,7 m2, 390x300cm, 500x390cm
81 500 
110 000 

Nejnovější články v blogu