Zahradní domek se skladem STRASSBURG

  • Materiál: severský smrk
  • Rozměry: 397 cm x 430 cm
  • Obsah dodávky: standardně bez podlahy, palubky s perem a drážkou
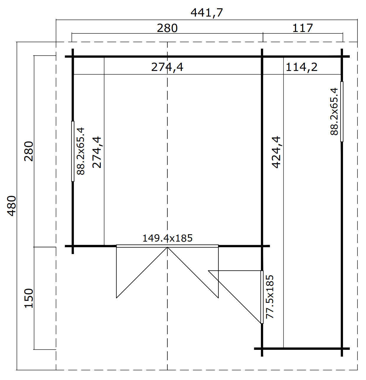
  • Dveře: 149×185 cm ,77×185 cm
  • Okno: 88×65 cm, 2 kusy
  • Tloušťka materiálu: 28 mm
79 000 
Ceny jsou uvedeny s DPH
Nejnižší cena za posledních 30 dní před poskytnutím slevy.

Dostupné na objednávku

Červený štítek s textem „Akční cena".
Dokumenty ke stažení:
Doplňující informace:

V základu bez podlahy.

 

Doporučujeme při montáži bez podlahy dokoupit podkladní tlakově impregnované hranoly pod stěny stavby v ceně 1.500,- Kč vč. DPH

 

Zahradní domek nelze smontovat zrcadlově

Strassburg zahradní domek se skladem: Praktické řešení pro vaši zahradu

Strassburg zahradní domek se skladem je ideálním řešením pro všechny, kteří hledají spolehlivý a prostorný dřevěný domek s praktickým úložným prostorem. Díky klasickému designu a robustní konstrukci poskytuje Strassburg zahradní domek se skladem perfektní kombinaci estetiky a funkčnosti.


Prostorný interiér s odděleným skladem

  • Celková vnitřní plocha: 16,61 m² nabízí dostatek prostoru pro skladování i relaxaci.
  • Užitná plocha skladu: 12,37 m² umožňuje organizované uložení nářadí a zahradního vybavení.
  • Celkový objem: 36,45 m³ poskytuje vzdušné a prostorné prostředí.

Pevná a odolná konstrukce

  • Tloušťka stěn: 28 mm zajišťuje stabilitu a ochranu před povětrnostními vlivy.
  • Srubové spoje s perodrážkou: Zaručují pevnost a dlouhou životnost.
  • Materiál: Kvalitní, neošetřené dřevo, vhodné pro individuální úpravy.

Klasická sedlová střecha pro elegantní vzhled

  • Typ střechy: Sedlová se sklonem 16° pro efektivní odtok vody.
    • Střešní plocha: 22,08 m²
    • Střešní krytina: Není součástí balení (možnost doplnění šindelů nebo asfaltového pásu).
  • Přesahy střechy:
    • Přední: 30 cm
    • Zadní: 20 cm
    • Pravý: 21,4 cm
    • Levý: 23,2 cm

Kvalitní dveře a okna

  • Dvojité vstupní dveře (SGA+28 – Single Glazed Action s 28mm rámem):
    • Rozměry: 1494 × 1850 mm
    • Jednoduché zasklení poskytuje dostatek světla a pohodlný vstup.
  • Jednoduché dřevěné dveře (SGA+28 – Single Glazed Action s 28mm rámem):
    • Rozměry: 775 × 1850 mm
    • Ideální pro samostatný skladovací prostor.
  • Dvě otevíratelná okna (SGA – Single Glazed Action):
    • Rozměry: 882 × 654 mm
    • Poskytují přirozené světlo a možnost větrání.

Podlaha a montáž

  • Podlaha: Není součástí balení, možnost dokoupení podle potřeby.
  • Montáž: Precizně opracované díly umožňují jednoduchou a efektivní montáž.

Proč si vybrat Strassburg zahradní domek se skladem?

  • Kombinace domku a skladu – ideální pro relaxaci i praktické využití.
  • Klasický design se sedlovou střechou – elegantní vzhled vhodný do každé zahrady.
  • Robustní konstrukce – pevné dřevěné stěny a spoje zaručují dlouhou životnost.
  • Prostorný interiér – dostatek místa pro zahradní vybavení i odpočinkovou zónu.
  • Kvalitní dveře a okna – dostatek světla a pohodlný vstup.
  • Snadná montáž – rychlé sestavení díky preciznímu zpracování.

Objednejte si Strassburg zahradní domek se skladem ještě dnes!

Vytvořte si dokonalý prostor pro skladování, práci nebo relaxaci přímo ve své zahradě. Strassburg zahradní domek se skladem je skvělým řešením pro každého, kdo hledá stylový a funkční dřevěný domek!

K zahradním domkům je možné doobjednat přístřešek.

Přístřešek zboku prodlužuje střechu o 120cm (případně dle Vašeho přání na míru). Přístřešek a terasu lze vidět v našich realizacích.

(v nabídce i zrcadlová verze)

 

Kontaktujte nás

Chcete informace hned? Volejte ihned! A rovnou se zeptejte!

Denně od 8.00 do 20.00 hod

Máte dotazy?

Pro více informací vyplňte kontaktní formulář – odpovídáme do 24 hodin.

Nenašli jste co hledáte?

Hledáte atypický domeček? Napište nám.

Nezávaznou nabídku Vám vypracujeme už do 24 hodin!

Pokud Vám nepřijde odpověď do 24 hodin Váš dopit neprošel volejte prosím tel: 775 780 563 !

Mohlo by se vám líbit

Nejnovější články v blogu

Web a SEO od Beyondea – SEO agentura