Dřevěná garáž Nevis

Materiál: severský smrk
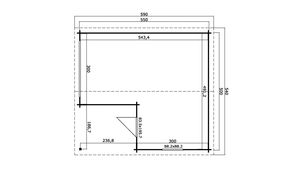
Rozměr: 500 cm x 550 cm (27,50 m2)
Rozměr v m2: 21 m2
Síla materiálu: 44 mm
145 000 
125 000 
Ceny jsou uvedeny s DPH
Nejnižší cena za posledních 30 dní před poskytnutím slevy.

Dostupné na objednávku

Dokumenty ke stažení:
Doplňující informace:

Cena vč. DPH: 115.000,-Kč - bez vrat

135.900 Kč – klasická dřevěná vrata

145.900 Kč – Výklopný vrata Hormann dřevěná

(k dispozici je také zrcadlová verze)

 

Nevis – dřevěná garáž

Stylové a funkční řešení pro vaše vozidlo

Klíčové vlastnosti dřevěné garáže Nevis

Dřevěná garáž Nevis je kvalitní a prostorná garáž s klasickým designem, která poskytuje spolehlivou ochranu pro vaše vozidlo. Díky robustní konstrukci, sedlové střeše a dostatečnému vnitřnímu prostoru je ideální volbou pro parkování auta, uskladnění nářadí nebo dalších doplňků.

Prostorný interiér

  • Celková vnitřní plocha: 26,58 m² poskytuje dostatek prostoru pro parkování a skladování.

  • Objem: 67,43 m³ zajišťuje dostatek prostoru pro bezpečné uskladnění vozidla a vybavení.

  • Tvar L: Nabízí flexibilní uspořádání pro pohodlný přístup a manipulaci.

Pevná a odolná konstrukce

  • Tloušťka stěn: 44 mm zajišťuje vysokou stabilitu a dlouhou životnost.

  • Zrubové spoje s perodrážkou: Poskytují pevnost a odolnost proti povětrnostním podmínkám.

  • Materiál: Kvalitní, neošetřené dřevo s certifikací FSC PEFC.

Sedlová střecha s klasickým vzhledem

  • Typ střechy: Sedlová se sklonem 21,4° pro efektivní odvod vody.

    • Střešní plocha: 34,22 m²

    • Střešní krytina: Není součástí balení (možnost doplnění šindelů nebo asfaltového pásu).

  • Přesahy střechy:

    • Přední: 20 cm

    • Zadní: 20 cm

    • Pravý: 20 cm

    • Levý: 20 cm

Kvalitní dveře a okna pro snadný přístup

  • Výklopná garážová vrata z masivního dřeva:

    • Rozměry: 2375 × 2075 mm

    • Klasický design a jednoduchá manipulace.

  • Jednokřídlé boční dveře:

    • Rozměry: 835 × 1957 mm

    • Poskytují pohodlný přístup bez nutnosti otevírat hlavní vrata.

  • Otevírací okno s jednoduchým zasklením:

    • Rozměry: 882 × 882 mm

    • Zajišťuje dostatek přirozeného světla a ventilace.

Proč si vybrat dřevěnou garáž Nevis?

  • Prostorný interiér – ideální pro parkování vozidla a skladování doplňků.

  • Klasický a nadčasový design – sedlová střecha a dřevěná konstrukce zapadnou do každého prostředí.

  • Pevná a kvalitní konstrukce – silné dřevěné stěny a precizní spoje zaručují dlouhou životnost.

  • Pohodlný přístup – garážová vrata a boční vstup pro maximální praktičnost.

  • Snadná montáž – rychlé a jednoduché sestavení díky preciznímu zpracování.

Objednejte si dřevěnou garáž Nevis ještě dnes!

Vytvořte si ideální prostor pro parkování a ochranu vašeho vozidla. Dřevěná garáž Nevis je skvělou volbou pro ty, kteří hledají kvalitní, estetickou a funkční garáž pro své auto!

Navštívit náš blog o zahradních chatkách.

18 – Zahradní domek Balmoral – prostor pro odpočinek ve Vaší zahradě

Představujeme Vám další z našich zahradních domků od Lasity – Balmoral. Krásný prosklený zahradní domek v provedení 44mm.

17 – Zahradní domek rady Gotland v 40mm provedení v rozměrech až do 23m2

Jedním z nosných produktů vyráběných v Estonskem závodě Lasita Maja je řada domků Gotland v provedeních…

16 – Garáže pro Vašeho čtyřkolového miláčka od Lasity

V následujícím blogu bychom Vám rádi představili naše dřevěné garáže. Jsou velmi rychlým a ekonomickým řešením pro naše klienty.

 

 

 

Kontaktujte nás

Chcete informace hned? Volejte ihned! A rovnou se zeptejte!

Denně od 8.00 do 20.00 hod

Máte dotazy?

Pro více informací vyplňte kontaktní formulář – odpovídáme do 24 hodin.

Nenašli jste co hledáte?

Hledáte atypický domeček? Napište nám.

Nezávaznou nabídku Vám vypracujeme už do 24 hodin!

Pokud Vám nepřijde odpověď do 24 hodin Váš dopit neprošel volejte prosím tel: 775 780 563 !

Mohlo by se vám líbit

159 000 
199 000 
Rozměr: 300 cm x 450 cm 13,5 m2
95 000 
125 000 
Rozměr: 700 cm x 300 cm
129 000 
199 000 

Nejnovější články v blogu