Moderní dřevěná garáž s přístřeškem Bahamy

  • Materiál: severský smrk
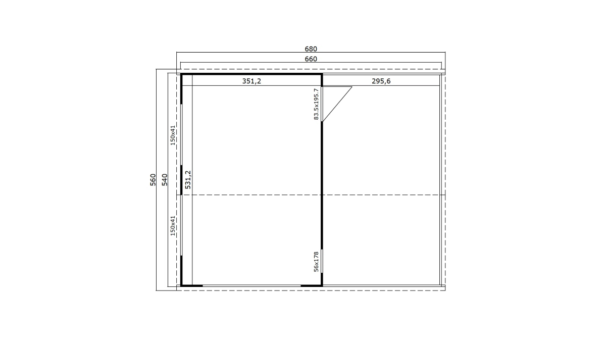
  • Rozměry: 360 cm x 540 cm + terasa 300 cm
  • Zastřešení: terasa 300 cm x 540 cm
  • Garážová vrata: 240 x 205 cm
  • Dveře: 83 x 195 cm
  • Okno: 56 x 178 cm, 150 x 41 cm (2 kusy) – dvojité zasklení
  • Tloušťka materiálu: 44 mm
  • Okna z bezpečnostního skla

212 500 Kč (klasická dvoukřídlá vrata)

—————————————————

245 000 Kč (výklopná vrata od Hörmann)

———————————————

260 000 Kč (sekční vrata)

(také dostupné v zrcadlovém provedení)

151 000 
Ceny jsou uvedeny s DPH
Nejnižší cena za posledních 30 dní před poskytnutím slevy.

Dostupné na objednávku

Červený štítek s textem „Akční cena".
Dokumenty ke stažení:
Doplňující informace:
V případě zájmu víme Vám nacenit i garáž bez přístřešku.

Dřevěná garáž Bahamas

Moderní a prostorná garáž pro vozidla a skladování 

Dřevěná garáž Bahamas je stylové a funkční řešení pro bezpečné parkování vašeho vozidla i dodatečné skladování. Díky modernímu designu, robustní konstrukci a kvalitním materiálům je ideální volbou pro každého, kdo hledá praktický a esteticky atraktivní prostor.

Prostorný interiér

  • Celková vnitřní plocha: 34,59 m² poskytuje dostatek místa pro vozidlo a úložné prostory.
  • Objem: 84,78 m³ umožňuje vzdušné a pohodlné využití prostoru.
  • Obdélníkový půdorys: Zajišťuje efektivní uspořádání a snadný pohyb uvnitř garáže.

Pevná a odolná konstrukce

  • Tloušťka stěn: 44 mm zajišťuje vysokou stabilitu a dlouhou životnost.
  • Moderní rohové spoje: Zaručují pevnost a odolnost vůči povětrnostním podmínkám.
  • Materiál: Kvalitní, neošetřené dřevo připravené na individuální povrchovou úpravu.

Rovná střecha pro moderní vzhled

  • Typ střechy: Rovná se sklonem 1,2° pro efektivní odvod dešťové vody.
    • Střešní plocha: 38,1 m²
    • Střešní krytina: Není součástí balení (možnost doplnění šindelů nebo asfaltového pásu).
  • Přesahy střechy:
    • Přední: 10 cm
    • Zadní: 10 cm
    • Pravý: 10 cm
    • Levý: 10 cm

Kvalitní dveře a okna pro maximální komfort

  • Garážová vrata z masivního dřeva:
    • Rozměry: 2400 × 2052 mm
    • Pevné a odolné pro snadný vstup vozidla.
  • Jednokřídlé boční dveře:
    • Rozměry: 835 × 1900 mm
    • Umožňují pohodlný vstup do garáže bez nutnosti otevírat hlavní vrata.
  • Tři okna s dvojitým zasklením:
    • Jedno otvíratelné okno: 560 × 1780 mm
    • Dvě pevná okna: 1500 × 410 mm
    • Poskytují dostatek přirozeného světla a moderní vzhled.

Možnost zrcadlového sestavení

  • Dřevěnou garáž Bahamas lze sestavit v zrcadlové variantě, což umožňuje přizpůsobení dispozice dle vašich potřeb.

Proč si vybrat dřevěnou garáž Bahamas?

  • Prostorný interiér – ideální pro parkování vozidla a dodatečné skladování.
  • Moderní design – rovná střecha a velké prosklené plochy dodávají garáži elegantní vzhled.
  • Pevná a kvalitní konstrukce – silné dřevěné stěny a precizní spoje zajišťují dlouhou životnost.
  • Pohodlný přístup – praktické boční dveře a velká garážová vrata pro snadnou manipulaci.
  • Kvalitní okna s dvojitým zasklením – dostatek světla pro příjemné a funkční prostředí.
  • Možnost zrcadlového sestavení – flexibilní uspořádání dle vašich požadavků.
  • Snadná montáž – rychlé a jednoduché sestavení díky preciznímu zpracování.

Objednejte si dřevěnou garáž Bahamas ještě dnes!

Vytvořte si ideální prostor pro parkování a ochranu vašeho vozidla. Dřevěná garáž Bahamas je skvělou volbou pro ty, kteří hledají moderní, prostornou a funkční garáž!

Výstavbě garáží a zahradních chatek se věnujeme i v našem blogu:

16 – Garáže pre Vášho štvorkolesového miláčika od Lasity Maja

V nasledujúcom blogu by sme Vám radi predstavili naše drevené garáže. Sú veľmi rýchlim a ekonomickým riešením pre našich klientov.

6 – Náter záhradnej chatky

Čosi o náteroch. Záhradný domček máme poskladaný a treba ho riadne ošetriť.  Vonkajšie prostredie vplýva na chatku hneď od začiatku .

3 – Objednanie a dodanie chatky v našej firme.

Pre nás sú dôležité základné informácie. Ak nemáte vybraný konkrétny záhradný domček – kľudne napíšte čo potrebujete. Napríklad domček 3×4 s rovnou strechou…

Způsob objednávky:

Snažíme se aby komunikace s námi byla vždy jednoduchá, jasná a přímá. Na základě Vaši mailové nebo telefonické poptávky vypracujeme vždy nezávaznou nabídku, která obsahuje naceněné služby dle Vašeho přání. Pokud máte zájem např. o montáž, střešní šindel – každá položka je naceněna zvlášť. Vy jste ten, který si naskládá objednávku dle vlastního uvážení.

Na základě telefonického nebo mailového kontaktu Vám bude vypracována nabídka. Tato obsahuje ceny s DPH a termín dodání

Konzultace nabídky … většinou probíhá telefonicky (příp. mailem), osobní návštěva v kanceláři v  Prostějově kde můžete vidět i vzorové domy

Odsouhlasení nabídky ze strany zákazníka. Jedná se o jednoduché potvrzení mailem. Odsouhlasíme Vaši nabídku a ihned objednáme domeček i následující služby: doprava, montáž atd.

 

 

Kontaktujte nás

Chcete informace hned? Volejte ihned! A rovnou se zeptejte!

Denně od 8.00 do 20.00 hod

Máte dotazy?

Pro více informací vyplňte kontaktní formulář – odpovídáme do 24 hodin.

Nenašli jste co hledáte?

Hledáte atypický domeček? Napište nám.

Nezávaznou nabídku Vám vypracujeme už do 24 hodin!

Pokud Vám nepřijde odpověď do 24 hodin Váš dopit neprošel volejte prosím tel: 775 780 563 !

Mohlo by se vám líbit

Nejnovější články v blogu

Web a SEO od Beyondea – SEO agentura